Vlot bereikbaar nieuwbouw appartement vlakbij het centrum van Geistingen, gelegen in het pas afgewerkte 'residentie Brouwershoes'.
Dit ruim en kwalitatief afgewerkt appartement is voorzien van centrale verwarming d.m.v. vloerverwarming op gas, een volledig uitgeruste open keuken, 2 slaapkamers en een royaal terras. Er zijn 2 autostaanplaaten en een berging inbegrepen in de kelder.
Geistingen is een dorp gelegen in de gemeente Kinrooi, vlakbij de Nederlandse grens. Terwijl je hier rustig woont zijn er toch tal van mogelijkheden in de buurt voor jong en oud. Zo kan je in de directe omgeving genieten van enkele toeristische trekpleisters, zoals het Dagstrand aan ‘De Steenberg’, Jachthaven ‘De Spaanjerd’, het Bastion en de Maasplassen. Daarnaast liggen steden zoals Maaseik en Bree op een korte autorit afstand.
De gemeenschappelijke lasten bedragen 50 euro per maand en het aandeel in de kosten van de plaatsbeschrijving bedraagt €250 incl. BTW.
INDELING
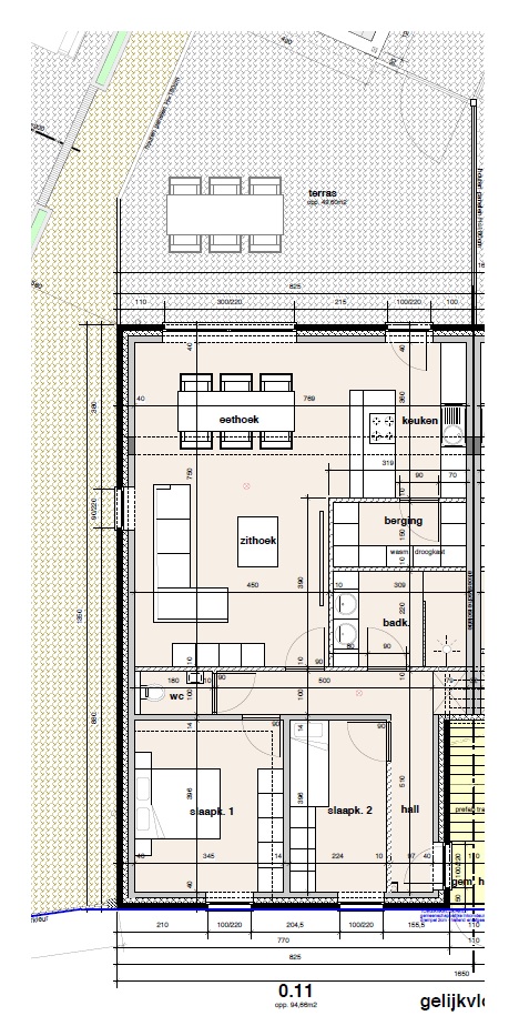
GELIJKVLOERS: inkomhal (± 9,3 m²) met laminaatvloer, leefruimte met open keuken (± 45,2 m²) met laminaatvloer en volledig ingericht met koelkast, afzuigkap, keramische kookplaat, vaatwasser, spoelbak en combi-oven, berging (± 4,6 m²) met laminaatvloer, toilet (± 1,8 m²) met laminaatvloer en spoelbakje, badkamer (± 6,8 m²) met tegelvloer en ingericht met inloopdouche, meubel met dubbele spoelbak en spiegel met
verlichting, 2 slaapkamers (± 13,8 m² en ± 8,9 m²), beiden met laminaatvloer en terras (± 49,6 m²).
KELDER: parkeerplaatsen nr. 5 en 2. Kelderberging nr. 2 (± 7,7 m²).
Dit ruim en kwalitatief afgewerkt appartement is voorzien van centrale verwarming d.m.v. vloerverwarming op gas, een volledig uitgeruste open keuken, 2 slaapkamers en een royaal terras. Er zijn 2 autostaanplaaten en een berging inbegrepen in de kelder.
Geistingen is een dorp gelegen in de gemeente Kinrooi, vlakbij de Nederlandse grens. Terwijl je hier rustig woont zijn er toch tal van mogelijkheden in de buurt voor jong en oud. Zo kan je in de directe omgeving genieten van enkele toeristische trekpleisters, zoals het Dagstrand aan ‘De Steenberg’, Jachthaven ‘De Spaanjerd’, het Bastion en de Maasplassen. Daarnaast liggen steden zoals Maaseik en Bree op een korte autorit afstand.
De gemeenschappelijke lasten bedragen 50 euro per maand en het aandeel in de kosten van de plaatsbeschrijving bedraagt €250 incl. BTW.
INDELING
GELIJKVLOERS: inkomhal (± 9,3 m²) met laminaatvloer, leefruimte met open keuken (± 45,2 m²) met laminaatvloer en volledig ingericht met koelkast, afzuigkap, keramische kookplaat, vaatwasser, spoelbak en combi-oven, berging (± 4,6 m²) met laminaatvloer, toilet (± 1,8 m²) met laminaatvloer en spoelbakje, badkamer (± 6,8 m²) met tegelvloer en ingericht met inloopdouche, meubel met dubbele spoelbak en spiegel met
verlichting, 2 slaapkamers (± 13,8 m² en ± 8,9 m²), beiden met laminaatvloer en terras (± 49,6 m²).
KELDER: parkeerplaatsen nr. 5 en 2. Kelderberging nr. 2 (± 7,7 m²).
In detail
-
Financieel
- Beschikbaarheid
- In onderling overleg
- Kosten
- € 50 p/m
- 3
- Opbrengsteigendom
- nee
-
Ligging
- Ligging
- Centraal
- Omgeving school
- ja
- Omgeving winkels
- ja
-
Comfort
- Gemeubeld
- nee
- Videofoon
- ja
- Lift
- nee
- Aansluiting gas
- ja
- Aansluiting water
- ja
- Kabeltelevisie
- ja
-
Gebouw
- Bewoonbare opp.
- 94,70 m²
- Constructie
- Halfopen
- Bouwjaar
- 2021
- Staat
- Nieuw
- Verdieping(en)
- 1
- Oriëntatie voorgevel
- Zuid
-
Stedenbouwkundige informatie
- G-score
- A
- P-score
- A
-
Energie
- EPC
- 52 kWh/m²
- EPC unieke code
- 72018-G-OMV-2020034573/EP17609/A001/D01/SD001
- Type ramen
- PVC
- Dubbel glas
- ja
- Beglazing
- Dubbele beglazing
- Verwarming
- Vloerverwarming
- Type verwarming
- Individueel
-
Technieken
- Elektriciteit
- ja
- Telefoonbekabeling
- ja
-
Garages / parking
- Garages / parking
- ja
- Binnenparking
- 2
- Buitenparking
- nee
-
Indeling
- Kelder
- ja
- Slaapkamers
- 2
- Slaapkamer 1
- 16 m²
- Slaapkamer 2
- 16 m²
- Slaapkamer 3
- 11 m²
- Terras
- ja
- Terras 1
- 49,60 m²
- Woonkamer
- 61 m²