Vlakbij het centrum van Geistingen centraal gelegen en goed bereikbaar appartement met 1 slaapkamer. Dit BEN-appartement met een E-peil van E28 is gelegen in de recent afgewerkte 'Residentie Brouwershoes'.
Het volledig afgewerkte appartement is ruim ingericht en voorzien van centrale verwarming d.m.v. vloerverwarming op gas, een volledig uitgeruste open keuken en een aangenaam terras. Een autostandplaats in de kelder en een ruime, afgesloten kelderberging zijn bovendien inbegrepen.
Geistingen is een kerkdorp dat we terugvinden in de gemeente Kinrooi, gelegen op een boogscheut van de Nederlandse grens, waar het rustig vertoeven is voor jong en oud, met tal van mogelijkheden in de buurt. Zo kan je in de directe omgeving genieten van enkele toeristische trekpleisters, zoals het Dagstrand aan ‘De Steenberg’, Jachthaven ‘De Spaanjerd’, het Bastion en de Maasplassen.
De gemeenschappelijke lasten bedragen 50 euro per maand. Het aandeel in de kosten van de plaatsbeschrijving bedraagt 250 euro incl. BTW.
INDELING
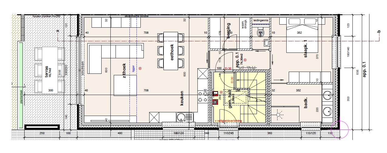
GELIJKVLOERS: inkomhal (± 3,6 m²) met laminaat, leefruimte met open keuken (± 42,5 m²) met laminaat en volledig ingericht met koelkast, combi-oven, keramische kookplaat, afzuigkap en spoelbak; berging (± 4,1 m²) met laminaat, toilet (± 1,5 m²) met laminaat, badkamer (± 7,7 m²) met tegelvloer en voorzien van inloopdouche, meubel met dubbele spoelbak en spiegel met verlichting; slaapkamer (± 13 m²) met laminaat en terras (± 19,7 m²).
KELDER: parkeerplaats en kelderberging (± 10,8 m²).
Het volledig afgewerkte appartement is ruim ingericht en voorzien van centrale verwarming d.m.v. vloerverwarming op gas, een volledig uitgeruste open keuken en een aangenaam terras. Een autostandplaats in de kelder en een ruime, afgesloten kelderberging zijn bovendien inbegrepen.
Geistingen is een kerkdorp dat we terugvinden in de gemeente Kinrooi, gelegen op een boogscheut van de Nederlandse grens, waar het rustig vertoeven is voor jong en oud, met tal van mogelijkheden in de buurt. Zo kan je in de directe omgeving genieten van enkele toeristische trekpleisters, zoals het Dagstrand aan ‘De Steenberg’, Jachthaven ‘De Spaanjerd’, het Bastion en de Maasplassen.
De gemeenschappelijke lasten bedragen 50 euro per maand. Het aandeel in de kosten van de plaatsbeschrijving bedraagt 250 euro incl. BTW.
INDELING
GELIJKVLOERS: inkomhal (± 3,6 m²) met laminaat, leefruimte met open keuken (± 42,5 m²) met laminaat en volledig ingericht met koelkast, combi-oven, keramische kookplaat, afzuigkap en spoelbak; berging (± 4,1 m²) met laminaat, toilet (± 1,5 m²) met laminaat, badkamer (± 7,7 m²) met tegelvloer en voorzien van inloopdouche, meubel met dubbele spoelbak en spiegel met verlichting; slaapkamer (± 13 m²) met laminaat en terras (± 19,7 m²).
KELDER: parkeerplaats en kelderberging (± 10,8 m²).
In detail
-
Financieel
- Prijs
- € 950 per maand
- Kosten
- € 50 p/m
- 3
- Opbrengsteigendom
- nee
-
Ligging
- Ligging
- Centraal
- Omgeving school
- ja
- Omgeving winkels
- ja
-
Comfort
- Videofoon
- ja
- Lift
- nee
- Aansluiting gas
- ja
- Aansluiting water
- ja
-
Gebouw
- Bewoonbare opp.
- 74,30 m²
- Constructie
- Halfopen
- Bouwjaar
- 2021
- Verdieping(en)
- 1
- Oriëntatie voorgevel
- Noordwest
-
Stedenbouwkundige informatie
- Bestemming
- Woongebied
- Dagvaarding
- Geen rechterlijke herstelmaatregel of bestuurlijke maatregel opgelegd
- G-score
- A
- P-score
- A
-
Energie
- EPC
- 55 kWh/m²
- EPC unieke code
- 72018-G-OMV_2020034573/EP17609/A001/D02/SD001
- EPC klasse
- A
- Type ramen
- PVC
- Dubbel glas
- ja
- Beglazing
- Dubbele beglazing
- Verwarming
- Vloerverwarming
- Type verwarming
- Individueel
-
Technieken
- Elektriciteit
- ja
- Telefoonbekabeling
- ja
-
Garages / parking
- Binnenparking
- 1
-
Indeling
- Kelder
- ja
- Slaapkamers
- 1
- Slaapkamer
- 13 m²
- Terras
- ja
- Terras 1
- 19,70 m²
- Woonkamer
- 43 m²
- Keuken
- ja
-
Downloads