Vlot bereikbaar appartement vlakbij het centrum van Geistingen, gelegen in 'Residentie Brouwershoes'.
Dit ruim ingerichte appartement bevindt zich op het gelijkvloers aan Geistingen 3 bus 2. Het zorgvuldig afgewerkte BEN-appartement is voorzien van centrale verwarming op gas d.m.v. vloerverwarming. Er is gebouwd volgens de huidige norm wat zich laat voelen in een zeer gunstig E-peil van E28. Het appartement is knap ingericht met grote raampartijen die veel lichtinval toelaten. De royale leefruimte met volledig ingerichte, open keuken biedt toegang tot het terras van formaat. Aansluitend aan de keuken vind je een praktische berging. Verder vind je hier 2 comfortabele slaapkamers, een badkamer en een apart toilet. Kers op de taart zijn de 2 parkeerplaatsen in de ondergrondse garage en de kelderberging.
Geistingen is een dorpje gelegen in de gemeente Kinrooi, kort gelegen aan de Nederlandse grens. Hoewel je hier rustig woont zijn er toch tal van mogelijkheden in de buurt voor jong en oud. Zo kan je in de directe omgeving genieten van enkele toeristische trekpleisters, zoals het Dagstrand aan ‘De Steenberg’, Jachthaven ‘De Spaanjerd’, het Bastion en de Maasplassen. Steden zoals Bree en Maaseik, tot slot, bevinden zich slechts op een korte autorit afstand.
De gemeenschappelijke lasten bedragen 50 euro per maand. Het aandeel in de kosten van de plaatsbeschrijving bedraagt €250 incl. BTW.
INDELING
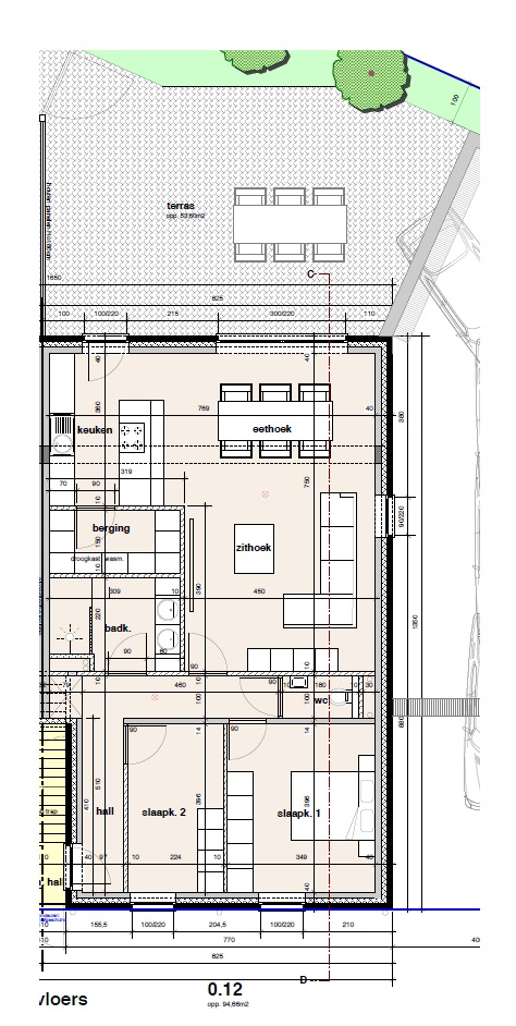
GELIJKVLOERS: inkomhal (± 9,3 m²) met laminaatvloer, leefruimte met open keuken (± 45,2 m²) met laminaatvloer en volledig ingericht met vaatwasser, koelkast, spoelbak, afzuigkap, keramische kookplaat en combi-oven, berging (± 4,6 m²) met laminaatvloer, toilet (± 1,8 m²) met laminaatvloer en spoelbakje, badkamer (± 6,8 m²) met tegelvloer en ingericht met meubel met dubbele spoelbak, spiegel met verlichting en inloopdouche; 2 slaapkamers (± 13,8 m² en ± 8,9 m²), beiden met laminaatvloer en terras (± 53,6 m²).
KELDER: parkeerplaatsen nr. 4 en 1. Kelderberging nr. 9 (± 9,57 m²).
Dit ruim ingerichte appartement bevindt zich op het gelijkvloers aan Geistingen 3 bus 2. Het zorgvuldig afgewerkte BEN-appartement is voorzien van centrale verwarming op gas d.m.v. vloerverwarming. Er is gebouwd volgens de huidige norm wat zich laat voelen in een zeer gunstig E-peil van E28. Het appartement is knap ingericht met grote raampartijen die veel lichtinval toelaten. De royale leefruimte met volledig ingerichte, open keuken biedt toegang tot het terras van formaat. Aansluitend aan de keuken vind je een praktische berging. Verder vind je hier 2 comfortabele slaapkamers, een badkamer en een apart toilet. Kers op de taart zijn de 2 parkeerplaatsen in de ondergrondse garage en de kelderberging.
Geistingen is een dorpje gelegen in de gemeente Kinrooi, kort gelegen aan de Nederlandse grens. Hoewel je hier rustig woont zijn er toch tal van mogelijkheden in de buurt voor jong en oud. Zo kan je in de directe omgeving genieten van enkele toeristische trekpleisters, zoals het Dagstrand aan ‘De Steenberg’, Jachthaven ‘De Spaanjerd’, het Bastion en de Maasplassen. Steden zoals Bree en Maaseik, tot slot, bevinden zich slechts op een korte autorit afstand.
De gemeenschappelijke lasten bedragen 50 euro per maand. Het aandeel in de kosten van de plaatsbeschrijving bedraagt €250 incl. BTW.
INDELING
GELIJKVLOERS: inkomhal (± 9,3 m²) met laminaatvloer, leefruimte met open keuken (± 45,2 m²) met laminaatvloer en volledig ingericht met vaatwasser, koelkast, spoelbak, afzuigkap, keramische kookplaat en combi-oven, berging (± 4,6 m²) met laminaatvloer, toilet (± 1,8 m²) met laminaatvloer en spoelbakje, badkamer (± 6,8 m²) met tegelvloer en ingericht met meubel met dubbele spoelbak, spiegel met verlichting en inloopdouche; 2 slaapkamers (± 13,8 m² en ± 8,9 m²), beiden met laminaatvloer en terras (± 53,6 m²).
KELDER: parkeerplaatsen nr. 4 en 1. Kelderberging nr. 9 (± 9,57 m²).
In detail
-
Financieel
- Prijs
- € 1.100 per maand
- Beschikbaarheid
- In onderling overleg
- Kosten
- € 50 p/m
- Opbrengsteigendom
- nee
-
Ligging
- Ligging
- Centraal
- Omgeving school
- ja
- Omgeving openbaar vervoer
- ja
- Omgeving winkels
- ja
-
Comfort
- Gemeubeld
- nee
- Videofoon
- ja
- Lift
- nee
- Aansluiting gas
- ja
- Aansluiting water
- ja
- Kabeltelevisie
- ja
-
Gebouw
- Bewoonbare opp.
- 94,70 m²
- Constructie
- Halfopen
- Bouwjaar
- 2021
- Verdieping(en)
- 1
- Oriëntatie voorgevel
- Zuid
-
Stedenbouwkundige informatie
- G-score
- A
- P-score
- A
-
Energie
- EPC
- 54 kWh/m²
- EPC unieke code
- 72018-G-OMV_2020034573/EP17609/A001/D01/SD002
- EPC klasse
- A
- Type ramen
- PVC
- Dubbel glas
- ja
- Beglazing
- Dubbele beglazing
- Verwarming
- Vloerverwarming
- Type verwarming
- Individueel
-
Technieken
- Elektriciteit
- ja
- Telefoonbekabeling
- ja
-
Garages / parking
- Garages / parking
- ja
- Binnenparking
- 2
- Buitenparking
- nee
-
Indeling
- Kelder
- ja
- Slaapkamers
- 2
- Slaapkamer 1
- 14 m²
- Slaapkamer 2
- 9 m²
- Terras
- ja
- Terras 1
- 53,60 m²
- Woonkamer
- 45 m²