Net buiten het centrum van Bree ligt deze luxueus afgewerkte woning. In dit ruime huis met bouwjaar 2017 vind je 4 slaapkamers, 2 badkamers en een prachtige leefruimte met veel lichtinval.
Dankzij de strakke landelijke inrichting met houten accenten voel je je hier meteen thuis. In het hart van de woning bevindt zich de ruime leefruimte met open keuken, waar door grote raampartijen veel lichtinval is. De open keuken is volledig uitgerust en biedt uitzicht op het overdekt terras en de grote tuin met achterliggende weilanden. Deze woning wordt verwarmd door middel van vloerverwarming op aardgas. Daarnaast zijn PVC ramen met driedubbele beglazing aanwezig, gedeeltelijk voorzien van rolluiken. Het gebruikscomfort van de woonst wordt nog eens verhoogd door aanwezigheid van domotica.
Ook de ligging is uitstekend: het stadscentrum van Bree met winkels, horeca en banken bevindt zich op wandelafstand en uitvalswegen zoals de Grote Baan, Meeuwerkiezel en ’t Hasseltkiezel bevinden zich vlakbij.
Het aandeel in de kosten voor de plaatsbeschrijving bedraagt 250 euro incl. BTW. Deze woning is beschikbaar vanaf 1 februari 2026.
INDELING
Gelijkvloers: Inkomhal met trap (± 20 m²), berging (± 9,3 m²), toilet (± 2,3 m²) met meubel met spoelbakje en ingebouwde kast, leefruimte met open keuken (± 76,2 m²) die volledig uitgerust is met dubbele spoelbak, inductie kookplaat, diepvries, koelkast, vaatwasser en eiland, inkomhal achter (± 6 m²), badkamer (± 7,5 m²) met douche en meubel met dubbele spoelbak, en royale tuin met overdekt terras.
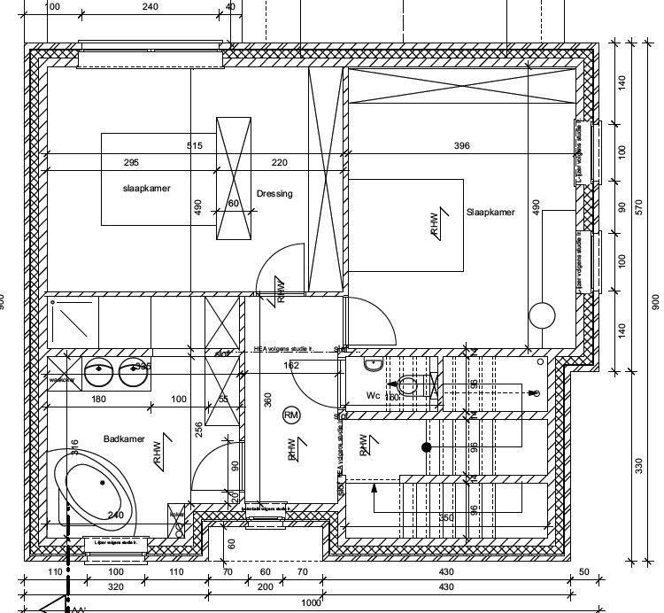
1e verdieping: Nachthal met trap (± 12,7 m²), badkamer (± 13,5 m²) met bad, meubel met dubbele spoelbak en ruime inloopdouche, 2 slaapkamers (± 28,9 m² en ± 23,3 m²) en toilet (± 1,9 m²).
2e verdieping: Nachthal (± 6,5 m²), technische ruimte (± 8,7 m²) en 2 slaapkamers (± 22,7m² en ± 15,9 m²).
Dankzij de strakke landelijke inrichting met houten accenten voel je je hier meteen thuis. In het hart van de woning bevindt zich de ruime leefruimte met open keuken, waar door grote raampartijen veel lichtinval is. De open keuken is volledig uitgerust en biedt uitzicht op het overdekt terras en de grote tuin met achterliggende weilanden. Deze woning wordt verwarmd door middel van vloerverwarming op aardgas. Daarnaast zijn PVC ramen met driedubbele beglazing aanwezig, gedeeltelijk voorzien van rolluiken. Het gebruikscomfort van de woonst wordt nog eens verhoogd door aanwezigheid van domotica.
Ook de ligging is uitstekend: het stadscentrum van Bree met winkels, horeca en banken bevindt zich op wandelafstand en uitvalswegen zoals de Grote Baan, Meeuwerkiezel en ’t Hasseltkiezel bevinden zich vlakbij.
Het aandeel in de kosten voor de plaatsbeschrijving bedraagt 250 euro incl. BTW. Deze woning is beschikbaar vanaf 1 februari 2026.
INDELING
Gelijkvloers: Inkomhal met trap (± 20 m²), berging (± 9,3 m²), toilet (± 2,3 m²) met meubel met spoelbakje en ingebouwde kast, leefruimte met open keuken (± 76,2 m²) die volledig uitgerust is met dubbele spoelbak, inductie kookplaat, diepvries, koelkast, vaatwasser en eiland, inkomhal achter (± 6 m²), badkamer (± 7,5 m²) met douche en meubel met dubbele spoelbak, en royale tuin met overdekt terras.
1e verdieping: Nachthal met trap (± 12,7 m²), badkamer (± 13,5 m²) met bad, meubel met dubbele spoelbak en ruime inloopdouche, 2 slaapkamers (± 28,9 m² en ± 23,3 m²) en toilet (± 1,9 m²).
2e verdieping: Nachthal (± 6,5 m²), technische ruimte (± 8,7 m²) en 2 slaapkamers (± 22,7m² en ± 15,9 m²).
In detail
-
Financieel
- Prijs
- € 1.650 per maand
- Opbrengsteigendom
- nee
-
Ligging
- Ligging
- Centraal
- Omgeving school
- 1.200,00 m
- Omgeving openbaar vervoer
- 75,00 m
- Omgeving winkels
- 800,00 m
- Omgeving sportcentrum
- 1.600,00 m
-
Comfort
- Alarm
- ja
- Aansluiting riolering
- ja
- Aansluiting gas
- ja
- Aansluiting water
- ja
- Kabeltelevisie
- ja
- Domotica
- ja
-
Gebouw
- Bewoonbare opp.
- 250,00 m²
- Constructie
- Halfopen
- Bouwjaar
- 2017
- Gevelbreedte
- 10,00 m
- Oriëntatie voorgevel
- Noordoost
-
Terrein
- Perceel opp.
- 1.364,00 m²
- Tuin
- ja
-
Stedenbouwkundige informatie
- G-score
- A
- P-score
- A
-
Energie
- EPC
- 97 kWh/m²
- EPC unieke code
- 72004-G-2013_4642/EP11276/A001/D01/SD001
- Type ramen
- PVC
- Dubbel glas
- ja
- Verwarming
- Vloerverwarming
- Regenwaterput
- ja
-
Technieken
- Elektriciteit
- ja
- Telefoonbekabeling
- ja
-
Garages / parking
- Binnenparking
- ja
- Buitenparking
- ja
-
Indeling
- Woonkamer
- 45 m²
- Keuken
- 22 m², Volledig geïnstalleerd
- Slaapkamers
- 4
- Slaapkamer 1
- 29 m²
- Slaapkamer 2
- 23 m²
- Slaapkamer 3
- 23 m²
- Slaapkamer 4
- 16 m²
- Terras
- ja