Deze prachtige nieuwbouwwoning met 3 slaapkamers bevindt zich aan Op de Koopman 33. In deze woning is over alle details nagedacht en dat merk je meteen. De grote leefruimte met zit- en eetgedeelte, open keuken én ruimte voor een thuiswerkplek straalt warmte uit. Er zijn screens aanwezig en de grote raampartijen bieden zicht op en toegang tot de gezellige, volledig omheinde achtertuin met tuinberging. Vanuit de keuken, die zorgvuldig en volledig ingericht is, heb je via een handige verborgen deur toegang tot de berging. De berging is ook bereikbaar via de zijdeur die zich onder de carport bevindt. Er is een aparte wasplaats aanwezig met ingebouwde kasten en een praktisch werkblad. Het apart gastentoilet maakt het gelijkvloers af. Op de eerste verdieping bevinden zich drie slaapkamers en een ruime badkamer.
De woning ademt kwaliteit en woongemak. Zo is er aan meer dan voldoende bergruimte gedacht in de keuken, wasplaats, toilet en badkamer. De aanwezigheid van directe en indirecte verlichting zorgt ervoor dat je altijd de juiste sfeer kan zetten. Ook buitenverlichting is alvast aanwezig. Zowel op het gelijkvloers als op de eerste verdieping geniet je van airco. Je kan de elektrische wagen onder de carport opladen. Verder geniet je hier van een alarmsysteem en domotica.
Dit huis is een nieuwbouwwoning en is volgens de huidige normen op een duurzame manier gebouwd. Zo zijn er onder meer 15 zonnepanelen, een ventilatiesysteem D en aluminium ramen met dubbele beglazing. Het huis wordt verwarmd op gas met vloerverwarming. Het hoeft dan ook niet te verrassen dat er een zeer gunstig E-Peil van E9 voorzien wordt.
De woonst is gelegen in een rustige, gezinsvriendelijke woonwijk die zich vlakbij retailpark Gerkenspark en het stadscentrum van Bree bevindt. Winkels, scholen, horeca, cultuur en meer bevinden zich hier dan ook binnen handbereik.
Het aandeel in de kosten van de plaatsbeschrijving bedraagt € 250,- incl. BTW.
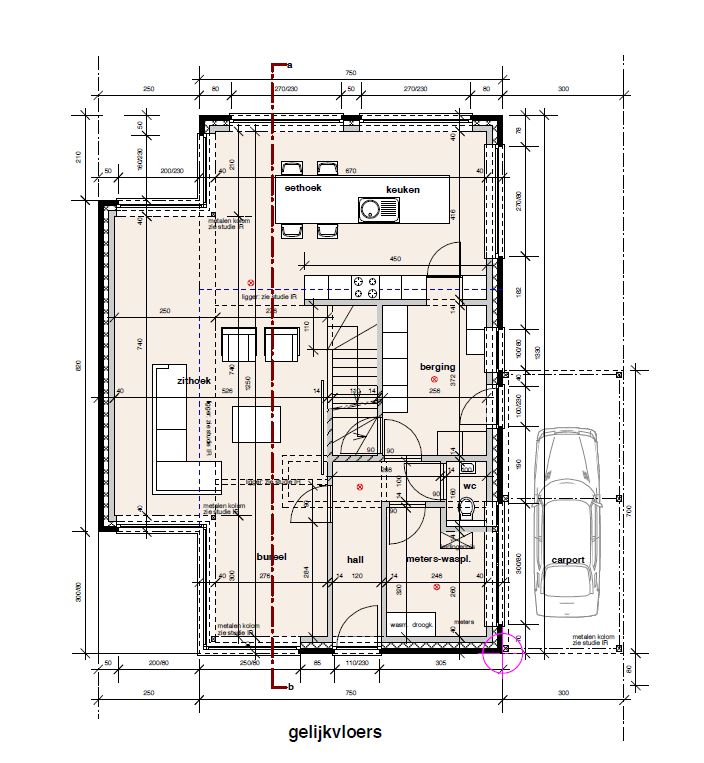
INDELING:
Gelijkvloers: inkomhal (± 6,7 m²), leefruimte met zitgedeelte (± 33,3 m²), bureelgedeelte (± 8,3 m²) en keukengedeelte (± 27,9 m²), ingericht met onder- en bovenkasten, eiland, composieten werkblad, inductievuur, koelkast, vaatwasser en spoelbak, berging (± 9,5 m²), gastentoilet (± 1,6 m²) met ingebouwde kast, wastafeltje en spiegel en wasplaats (± 7,2 m²) met ingebouwde kast, onderkast, werkblad en spoelbak. Tuin met terras en tuinberging en carport aan linkerzijde van de woning.
1e verdieping: nachthal (± 2 m²), slaapkamer 1 (± 12,4 m²), slaapkamer 2 (± 11,3 m²), slaapkamer 3 (± 9,8 m²) en badkamer (± 10,3 m²) met toilet, meubel met onderkast en dubbele wastafel, kolomkast, spiegel, ingebouwde kast en inloopdouche.
De woning ademt kwaliteit en woongemak. Zo is er aan meer dan voldoende bergruimte gedacht in de keuken, wasplaats, toilet en badkamer. De aanwezigheid van directe en indirecte verlichting zorgt ervoor dat je altijd de juiste sfeer kan zetten. Ook buitenverlichting is alvast aanwezig. Zowel op het gelijkvloers als op de eerste verdieping geniet je van airco. Je kan de elektrische wagen onder de carport opladen. Verder geniet je hier van een alarmsysteem en domotica.
Dit huis is een nieuwbouwwoning en is volgens de huidige normen op een duurzame manier gebouwd. Zo zijn er onder meer 15 zonnepanelen, een ventilatiesysteem D en aluminium ramen met dubbele beglazing. Het huis wordt verwarmd op gas met vloerverwarming. Het hoeft dan ook niet te verrassen dat er een zeer gunstig E-Peil van E9 voorzien wordt.
De woonst is gelegen in een rustige, gezinsvriendelijke woonwijk die zich vlakbij retailpark Gerkenspark en het stadscentrum van Bree bevindt. Winkels, scholen, horeca, cultuur en meer bevinden zich hier dan ook binnen handbereik.
Het aandeel in de kosten van de plaatsbeschrijving bedraagt € 250,- incl. BTW.
INDELING:
Gelijkvloers: inkomhal (± 6,7 m²), leefruimte met zitgedeelte (± 33,3 m²), bureelgedeelte (± 8,3 m²) en keukengedeelte (± 27,9 m²), ingericht met onder- en bovenkasten, eiland, composieten werkblad, inductievuur, koelkast, vaatwasser en spoelbak, berging (± 9,5 m²), gastentoilet (± 1,6 m²) met ingebouwde kast, wastafeltje en spiegel en wasplaats (± 7,2 m²) met ingebouwde kast, onderkast, werkblad en spoelbak. Tuin met terras en tuinberging en carport aan linkerzijde van de woning.
1e verdieping: nachthal (± 2 m²), slaapkamer 1 (± 12,4 m²), slaapkamer 2 (± 11,3 m²), slaapkamer 3 (± 9,8 m²) en badkamer (± 10,3 m²) met toilet, meubel met onderkast en dubbele wastafel, kolomkast, spiegel, ingebouwde kast en inloopdouche.
In detail
-
Financieel
- Prijs
- € 1.750 per maand
- Beschikbaarheid
- In onderling overleg
- Opbrengsteigendom
- nee
-
Ligging
- Ligging
- Rustig
- Omgeving school
- 550,00 m
- Omgeving openbaar vervoer
- ja
- Omgeving winkels
- 500,00 m
- Omgeving sportcentrum
- 1.000,00 m
-
Comfort
- Gemeubeld
- nee
- Alarm
- ja
- Videofoon
- ja
- Aansluiting riolering
- ja
- Aansluiting gas
- ja
- Aansluiting water
- ja
- Kabeltelevisie
- ja
- Domotica
- ja
-
Gebouw
- Bewoonbare opp.
- 140,30 m²
- Constructie
- Open
- Gevelbreedte
- 10,00 m
- Oriëntatie voorgevel
- Zuidoost
-
Terrein
- Perceel opp.
- 410,00 m²
- Tuin
- ja
-
Stedenbouwkundige informatie
- G-score
- A
- P-score
- A
-
Energie
- Type ramen
- Aluminium
- Dubbel glas
- ja
- Verwarming
- Vloerverwarming
- Zonnepanelen
- ja,
-
Technieken
- Elektriciteit
- ja
-
Garages / parking
- Buitenparking
- ja
-
Indeling
- Bureau
- 8 m²
- Woonkamer
- 33 m²
- Keuken
- 28 m², Volledig geïnstalleerd
- Slaapkamers
- 3
- Slaapkamer 1
- 12 m²
- Slaapkamer 2
- 11 m²
- Slaapkamer 3
- 10 m²
- Terras
- ja