Deze knappe BEN-woning met 3 slaapkamers bevindt zich aan de Maasstraat op een idyllische ligging in de woonkern van Ophoven. De kwalitatief ingerichte woning is voorzien van vloerverwarming d.m.v. een warmtepomp en is daarnaast voorzien van een regenwaterpomp, zonnepanelen en pvc ramen met dubbele beglazing. Dit resulteert in een uitstekend E-peil van E-11. Ook vind je in deze eengezinswoning een inpandige garage met automatische poort, een grote open ruimte van ± 37 m² op de 2e verdieping en een tuin van formaat.
Met haar ligging op wandelafstand van de jachthaven, het fietsroutenetwerk en het dagstrand van Ophoven vind je hier de ideale uitvalsbasis om te genieten van al het moois dat de omgeving te bieden heeft. Het centrum van Maaseik en Kinrooi, alsook de grens met Nederland bereik je op slechts enkele autominuten.
Het aandeel in de kosten van de plaatsbeschrijving bedraagt € 250,- incl. BTW.
INDELING:
Gelijkvloers: Inkomhal (± 8,8 m²), toilet (± 1,6 m²), leefruimte met keuken (± 44,5 m²) die ingericht is met onderkasten, bovenkasten, eiland, inductievuur, enkele spoelbak, koelkast en vaatwasser, inkomhal achter (± 5,6 m²), garage (± 20,5 m²), terras en tuin.
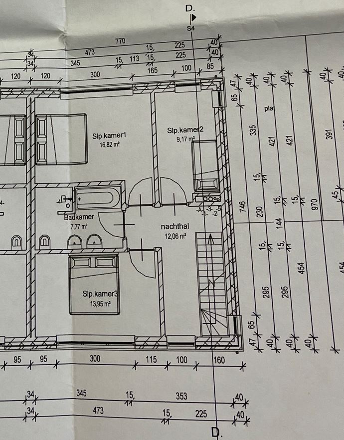
1e verdieping: nachthal (± 12,1 m²) met tegelvloer, badkamer (± 7,8 m²) ingericht met meubel met dubbele wastafel, onderkast, kolomkast en spiegel met verlichting, bad, toilet en douche, 3 slaapkamers(± 14 m², ± 16,8 m² en ± 9,2 m²).
2e verdieping: Open ruimte (± 37,1 m²) met laminaatvloer.
Met haar ligging op wandelafstand van de jachthaven, het fietsroutenetwerk en het dagstrand van Ophoven vind je hier de ideale uitvalsbasis om te genieten van al het moois dat de omgeving te bieden heeft. Het centrum van Maaseik en Kinrooi, alsook de grens met Nederland bereik je op slechts enkele autominuten.
Het aandeel in de kosten van de plaatsbeschrijving bedraagt € 250,- incl. BTW.
INDELING:
Gelijkvloers: Inkomhal (± 8,8 m²), toilet (± 1,6 m²), leefruimte met keuken (± 44,5 m²) die ingericht is met onderkasten, bovenkasten, eiland, inductievuur, enkele spoelbak, koelkast en vaatwasser, inkomhal achter (± 5,6 m²), garage (± 20,5 m²), terras en tuin.
1e verdieping: nachthal (± 12,1 m²) met tegelvloer, badkamer (± 7,8 m²) ingericht met meubel met dubbele wastafel, onderkast, kolomkast en spiegel met verlichting, bad, toilet en douche, 3 slaapkamers(± 14 m², ± 16,8 m² en ± 9,2 m²).
2e verdieping: Open ruimte (± 37,1 m²) met laminaatvloer.
In detail
-
Financieel
- Prijs
- € 1.450 per maand
- Beschikbaarheid
- In onderling overleg
- Opbrengsteigendom
- nee
-
Ligging
- Omgeving school
- ja
- Omgeving openbaar vervoer
- ja
- Omgeving winkels
- ja
- Omgeving strand
- ja
-
Comfort
- Gemeubeld
- nee
- Aansluiting riolering
- ja
- Aansluiting water
- ja
- Kabeltelevisie
- ja
-
Gebouw
- Bewoonbare opp.
- 157,20 m²
- Constructie
- Halfopen
- Bouwjaar
- 2022
- Verdieping(en)
- 3
- Bebouwbare opp. hoofdgebouw
- 80,85 m²
- Gevelbreedte
- 7,70 m
- Oriëntatie voorgevel
- Zuid
-
Terrein
- Perceel opp.
- 446,00 m²
- Tuin
- ja
-
Stedenbouwkundige informatie
- G-score
- A
- P-score
- A
-
Energie
- EPC unieke code
- 72018-G-OMV_2020177385/EP17609/A001/D05/SD001
- EPC klasse
- Ap
- Type ramen
- PVC
- Dubbel glas
- ja
- Verwarming
- warmtepomp
- Type verwarming
- Individueel
-
Technieken
- Elektriciteit
- ja
- Telefoonbekabeling
- ja
-
Garages / parking
- Garages / parking
- 1
-
Indeling
- Woonkamer
- 45 m²
- Keuken
- ja
- Slaapkamers
- 3
- Slaapkamer 1
- 17 m²
- Slaapkamer 2
- 14 m²
- Slaapkamer 3
- 9 m²
- Terras
- ja