In een rustige woonwijk in Wurfeld, vlakbij het centrum van Maaseik gelegen gelegen woning met 4 slaapkamers.
Deze ruim ingerichte woning is voorzien van centrale verwarming op aardgas met vloerverwarming op het gelijkvloers en radiatoren op de 1e verdieping. Verder beschikt deze energiezuinige woning met E-peil E39 over PVC-ramen met dubbele beglazing en over zonnepanelen. Je geniet in de gezellige leefruimte met volledig ingerichte open keuken volop van het zicht op de tuin. De 4 slaapkamers bieden, samen met de 2 bergruimtes en de aparte wasplaats, een zee van ruimte. De auto kan je kwijt in de inpandige garage met automatische poort.
Wurfeld is een gezellige deelgemeente van Maaseik. Vanuit deze woning bereik je het stadscentrum op slechts vijf minuutjes met de wagen. Dit zorgt ervoor dat winkels, scholen, horeca en meer zich op een steenworp afstand bevinden. Op wandelafstand van woning bevinden zich bovendien een kleuterschool en een park met speeltuin.
Deze woning is niet geschikt voor het houden van huisdieren. Het aandeel in de kosten van de plaatsbeschrijving bedraagt € 250,- incl. BTW.
INDELING
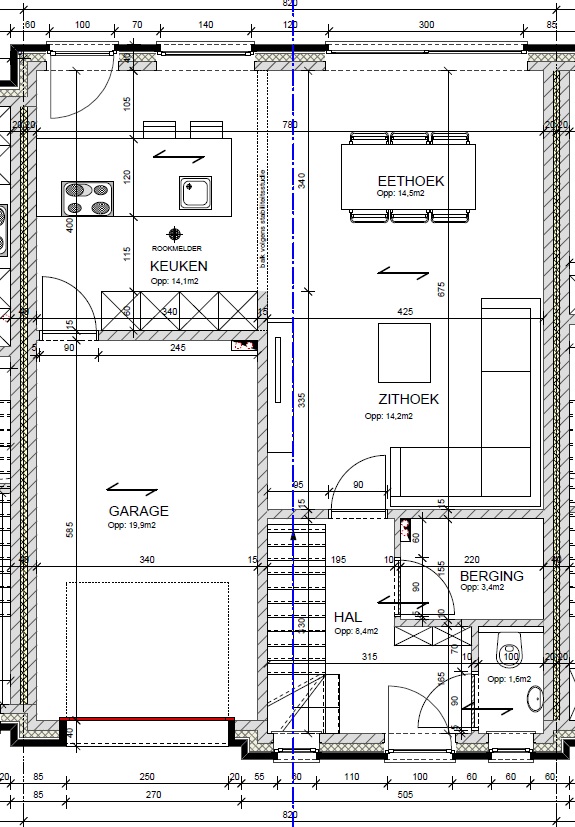
Gelijkvloers: inkomhal (8,4 m²) met tegelvloer en houten trap naar 1e verdieping; ven; toilet (1,6 m²) met tegelvloer; bergruimte (3,4 m²) met tegelvloer; woonkamer met open keuken (42,8 m²) ingericht met boven- en onderkasten, kookeiland met dubbele wastafel en onderkasten, inductie kookplaat, afzuigkap, koelkast, oven, microgolfoven, vaatwasser, tegelvloer en schuifpui en deur naar tuin; inpandige garage (19,9 m²) met tegelvloer en automatische sectionaal poort.
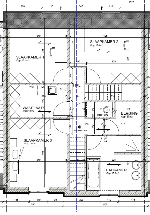
1e verdieping: nachthal (4,3 m²) met laminaatvloer; bergruimte/dressing (3,4 m²) met laminaatvloer; badkamer (10,6 m²) ingericht met badmeubel met dubbele wastafel, onder- en kolomkasten, spiegel, douche, ligbad en tegelvloer; slaapkamer 1 (13,1 m²) met laminaatvloer; slaapkamer 2 (15,4 m²) met laminaatvloer; slaapkamer 3 (13,8 m²) met laminaatvloer; wasruimte (6,5 m²) aansluiting wasmachine en tegelvloer; toilet (1,5 m²) met tegelvloer.
2e verdieping: bereikbaar via vaste houten trap (nuttige opp.: ± 30 m²), ingerichte ruimte, kan gebruikt worden als slaapkamer, speelkamer of bureauruimte.
Deze ruim ingerichte woning is voorzien van centrale verwarming op aardgas met vloerverwarming op het gelijkvloers en radiatoren op de 1e verdieping. Verder beschikt deze energiezuinige woning met E-peil E39 over PVC-ramen met dubbele beglazing en over zonnepanelen. Je geniet in de gezellige leefruimte met volledig ingerichte open keuken volop van het zicht op de tuin. De 4 slaapkamers bieden, samen met de 2 bergruimtes en de aparte wasplaats, een zee van ruimte. De auto kan je kwijt in de inpandige garage met automatische poort.
Wurfeld is een gezellige deelgemeente van Maaseik. Vanuit deze woning bereik je het stadscentrum op slechts vijf minuutjes met de wagen. Dit zorgt ervoor dat winkels, scholen, horeca en meer zich op een steenworp afstand bevinden. Op wandelafstand van woning bevinden zich bovendien een kleuterschool en een park met speeltuin.
Deze woning is niet geschikt voor het houden van huisdieren. Het aandeel in de kosten van de plaatsbeschrijving bedraagt € 250,- incl. BTW.
INDELING
Gelijkvloers: inkomhal (8,4 m²) met tegelvloer en houten trap naar 1e verdieping; ven; toilet (1,6 m²) met tegelvloer; bergruimte (3,4 m²) met tegelvloer; woonkamer met open keuken (42,8 m²) ingericht met boven- en onderkasten, kookeiland met dubbele wastafel en onderkasten, inductie kookplaat, afzuigkap, koelkast, oven, microgolfoven, vaatwasser, tegelvloer en schuifpui en deur naar tuin; inpandige garage (19,9 m²) met tegelvloer en automatische sectionaal poort.
1e verdieping: nachthal (4,3 m²) met laminaatvloer; bergruimte/dressing (3,4 m²) met laminaatvloer; badkamer (10,6 m²) ingericht met badmeubel met dubbele wastafel, onder- en kolomkasten, spiegel, douche, ligbad en tegelvloer; slaapkamer 1 (13,1 m²) met laminaatvloer; slaapkamer 2 (15,4 m²) met laminaatvloer; slaapkamer 3 (13,8 m²) met laminaatvloer; wasruimte (6,5 m²) aansluiting wasmachine en tegelvloer; toilet (1,5 m²) met tegelvloer.
2e verdieping: bereikbaar via vaste houten trap (nuttige opp.: ± 30 m²), ingerichte ruimte, kan gebruikt worden als slaapkamer, speelkamer of bureauruimte.
In detail
-
Financieel
- 3
- Opbrengsteigendom
- nee
-
Ligging
- Ligging
- Residentiële wijk
-
Comfort
- Gemeubeld
- nee
- Aansluiting riolering
- ja
- Aansluiting gas
- ja
- Aansluiting water
- ja
- Kabeltelevisie
- ja
-
Gebouw
- Bewoonbare opp.
- 160,00 m²
- Constructie
- Gesloten
- Bouwjaar
- 2017
- Staat
- Uitstekend
- Verdieping(en)
- 3
- Oriëntatie voorgevel
- Zuid
-
Terrein
- Perceel opp.
- 169,00 m²
- Tuin
- ja
-
Stedenbouwkundige informatie
- Bestemming
- Woonuitbreidingsgebied
- G-score
- B
- P-score
- B
-
Energie
- EPC
- 56 kWh/m²
- EPC unieke code
- 72021-G-2016_5896/EP11276/A002/D01/SD001
- Type ramen
- PVC
- Dubbel glas
- ja
- Verwarming
- Gas
- Zonnepanelen
- ja, Fotovoltaïsche
-
Technieken
- Elektriciteit
- ja
- Telefoonbekabeling
- ja
-
Garages / parking
- Garages / parking
- ja
- Binnenparking
- 1
-
Indeling
- Woonkamer
- 29 m²
- Keuken
- 14 m², Volledig geïnstalleerd
- Slaapkamers
- 4
- Slaapkamer 1
- 13 m²
- Slaapkamer 2
- 15 m²
- Slaapkamer 3
- 14 m²
- Slaapkamer 4
- 30 m²
- Terras
- nee