Op een boogscheut van de Markt, midden in het stadscentrum van Maaseik, vinden we op de Hepperstraat, dit imposante herenhuis terug. De woning werd omstreeks 1651 “In de Soete Naem” genoemd, later in 1710 werd dit herenhuis aangepast aan de late Maasstijl en werd de naam veranderd naar “Den Soeten Naem Jesu”. Verder in 1845 was het gebouw eigendom van notaris Quisthoudt J. Het pand is beschermd als herenhuis, gedateerd uit eerste kwart van 18e eeuw en is opgenomen als beschermd stadsgezicht.
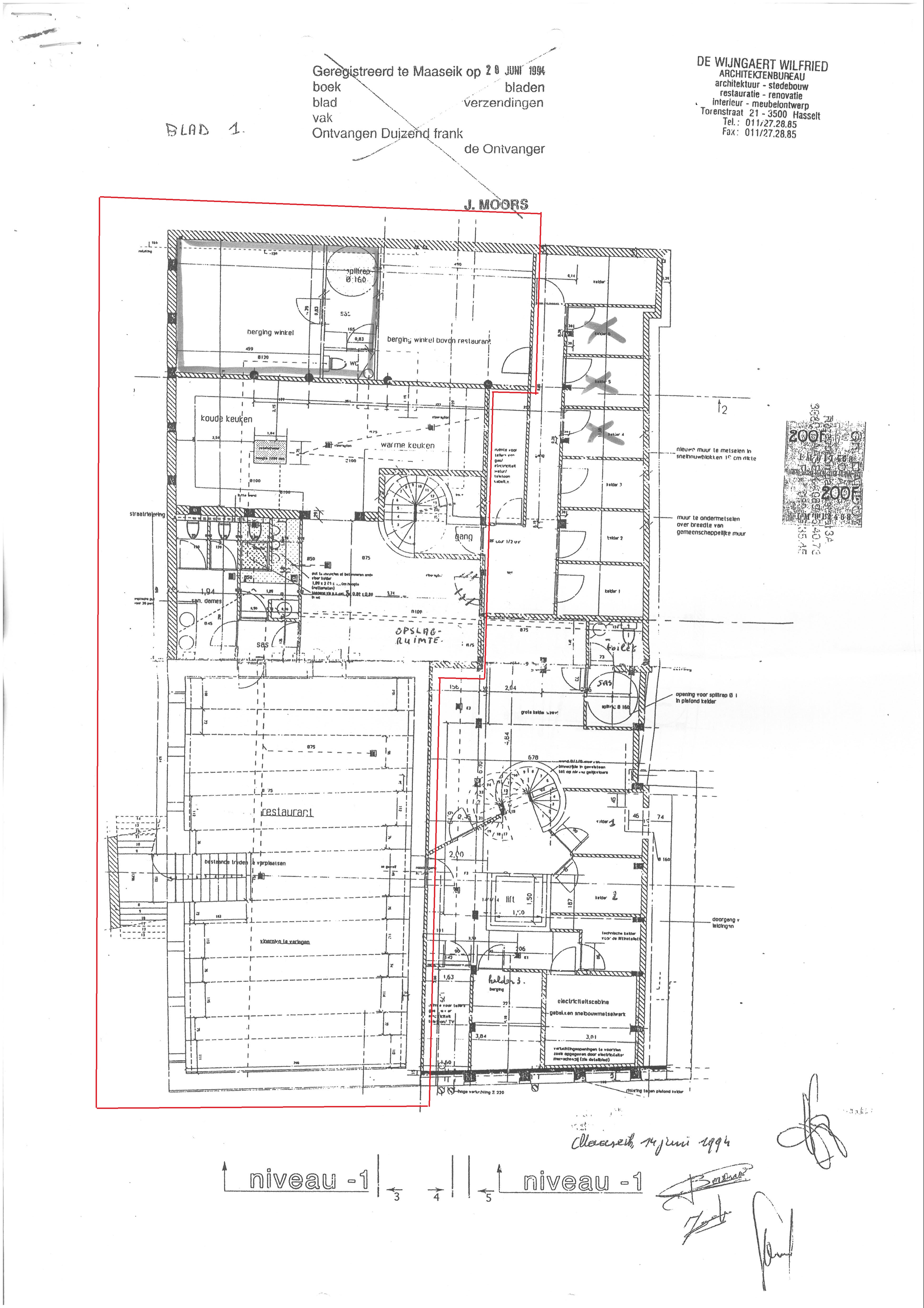
Het gebouw werd inmiddels onderverdeeld in verschillende woonentiteiten. In deze oude gewelfde, kelder vinden we op de hoek van de Heppestraat en de Vullerstraat, dit handelspand terug met een tot opp. van ± 235 m². Het pand is gelegen op een zeer centrale locatie in een winkel- wandelstraat, in hartje Maaseik. Het handelspand is jarenlang uitgebaat en gekend als restaurant. Verder wordt het pand momenteel verwarmd d.m.v. centrale verwarming op aardgas (ketel werd recent vernieuwd in febr. 2021). Beschikbaar voor diverse uitbaatmogelijkheden.
INDELING
GELIJKVLOERS: inkom aan Vullerstraat, op de hoek met de Hepperstraat
KELDERVERDIEPING: Handelsruimte (± 95 m²) in gewelfde kelder met tegelvloer; Sanitaire blok (± 21, m²) ingericht met aparte heren- en damestoiletten, tegelvloer; voormalige keuken/opslagruimte of extra ruimte (± 67 m²) met tegelvloer, ruimte is niet vooraf ingericht; aparte bergruimte (± 50 m²) met tegelvloer en aansluiting voor extra koelcel.
Zeer gunstige ligging in het stadscentrum van Maaseik met vele winkels, horecazaken, scholen en openbaar vervoer op loopafstand. Voldoende parkeermogelijkheden aanwezig in de buurt.
*Meer info betreffende het pand kan u terugvinden bij de bijgevoegde documenten onder “Vastgoedinfo”.
Meer info over het Herenhuis “In de Soete Naem Jesu” Het betreft een breedhuis van vier traveeën en drie bouwlagen onder een zeer steil wolfsdak van leien. De bakstenen lijstgevel staat op een kalkstenen plint met panelen. De begane grond is verhoogd. De harstenen kroonlijst wordt ondersteund door ojiefvormige consoles
Het gebouw werd inmiddels onderverdeeld in verschillende woonentiteiten. In deze oude gewelfde, kelder vinden we op de hoek van de Heppestraat en de Vullerstraat, dit handelspand terug met een tot opp. van ± 235 m². Het pand is gelegen op een zeer centrale locatie in een winkel- wandelstraat, in hartje Maaseik. Het handelspand is jarenlang uitgebaat en gekend als restaurant. Verder wordt het pand momenteel verwarmd d.m.v. centrale verwarming op aardgas (ketel werd recent vernieuwd in febr. 2021). Beschikbaar voor diverse uitbaatmogelijkheden.
INDELING
GELIJKVLOERS: inkom aan Vullerstraat, op de hoek met de Hepperstraat
KELDERVERDIEPING: Handelsruimte (± 95 m²) in gewelfde kelder met tegelvloer; Sanitaire blok (± 21, m²) ingericht met aparte heren- en damestoiletten, tegelvloer; voormalige keuken/opslagruimte of extra ruimte (± 67 m²) met tegelvloer, ruimte is niet vooraf ingericht; aparte bergruimte (± 50 m²) met tegelvloer en aansluiting voor extra koelcel.
Zeer gunstige ligging in het stadscentrum van Maaseik met vele winkels, horecazaken, scholen en openbaar vervoer op loopafstand. Voldoende parkeermogelijkheden aanwezig in de buurt.
*Meer info betreffende het pand kan u terugvinden bij de bijgevoegde documenten onder “Vastgoedinfo”.
Meer info over het Herenhuis “In de Soete Naem Jesu” Het betreft een breedhuis van vier traveeën en drie bouwlagen onder een zeer steil wolfsdak van leien. De bakstenen lijstgevel staat op een kalkstenen plint met panelen. De begane grond is verhoogd. De harstenen kroonlijst wordt ondersteund door ojiefvormige consoles
In detail
-
Financieel
- Prijs
- € 125.000
- Beschikbaarheid
- Vanaf akte
- Opbrengsteigendom
- nee
-
Ligging
- Ligging
- Stadskern
- Omgeving school
- ja
- Omgeving openbaar vervoer
- ja
- Omgeving winkels
- ja
-
Comfort
- Lift
- nee
- Aansluiting riolering
- ja
- Aansluiting gas
- ja
- Aansluiting water
- ja
-
Gebouw
- Bewoonbare opp.
- 235,00 m²
- Renovatiejaar
- 1994
- Staat
- Goede staat
- Verdieping(en)
- 1
- Bebouwbare opp. hoofdgebouw
- 235,00 m²
-
Stedenbouwkundige informatie
- Bestemming
- Woongebied met een cult., hist. en/of esthetische waarde
- Bouwvergunning
- nee
- Verkavelingsvergunning
- nee
- Voorkooprecht
- nee
- Dagvaarding
- Geen rechterlijke herstelmaatregel of bestuurlijke maatregel opgelegd
- Vonnissen
- nee
- G-score
- A
- P-score
- A
-
Ruimtelijke ordening
- Kadaster sectie
- E
- Kadaster nummer
- 739/G
-
Energie
- EPC unieke code
- 20210508-0002399854-KNR-1
- EPC klasse
- C
- Elektriciteitskeuring
- nee
- Verwarming
- Gas
- Type verwarming
- Individueel
-
Technieken
- Elektriciteit
- ja
- Telefoonbekabeling
- ja
-
Indeling
- Kelder
- ja
- Terras
- nee
- Keuken
- 67 m²
-
Downloads
Wenst u uw hypotheek te berekenen?
