Bedrijfsunit met een oppervlakte van 144 m² gelegen in KMO-park ‘Kallisto’. Dit KMO-park is in 2022 volledig nieuw opgericht op de voormalige site van de 7 Ambachten te Ophoven en ligt daarmee op een centrale, vlot bereikbare locatie.
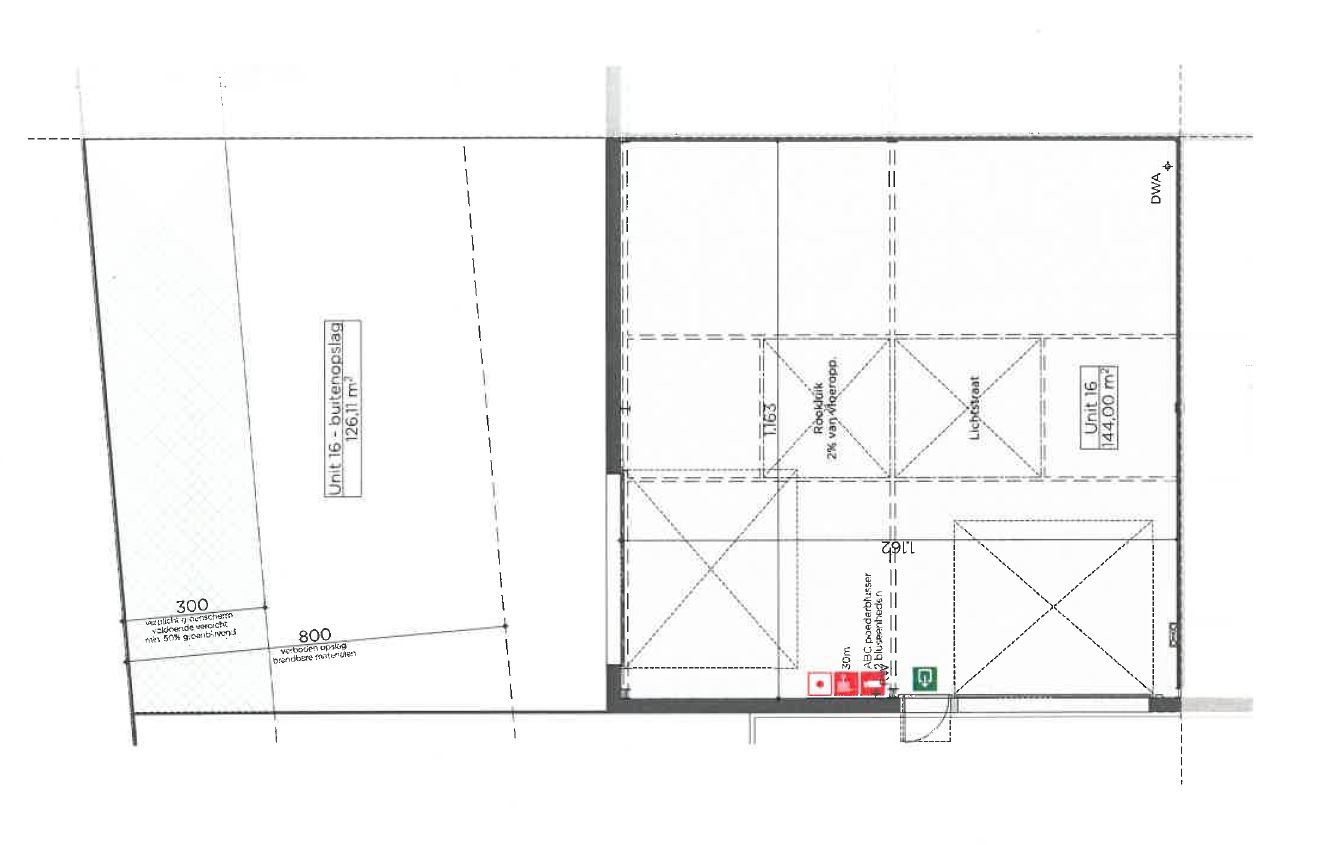
De KMO-unit is een bedrijfsruimte met een oppervlakte van ± 144 m², voorzien van een sectionaal poort van 4,5 m hoog en ook voorzien van een lichtstraat. Daarnaast is een buitenopslag van ± 126 m² aanwezig, te bereiken via een tweede sectionaal poort. Nutsvoorzieningen zoals elektriciteit en water zijn aanwezig. Er zijn 2 parkeerplaatsen voorzien.
De unit is beschikbaar vanaf 1 april 2026. Het aandeel in de kosten van de plaatsbeschrijving bedraagt € 150,- incl. BTW. De KMO-unit wordt verhuurd onder het BTW-stelsel; de vermelde huurprijs is excl. BTW.
De KMO-unit is een bedrijfsruimte met een oppervlakte van ± 144 m², voorzien van een sectionaal poort van 4,5 m hoog en ook voorzien van een lichtstraat. Daarnaast is een buitenopslag van ± 126 m² aanwezig, te bereiken via een tweede sectionaal poort. Nutsvoorzieningen zoals elektriciteit en water zijn aanwezig. Er zijn 2 parkeerplaatsen voorzien.
De unit is beschikbaar vanaf 1 april 2026. Het aandeel in de kosten van de plaatsbeschrijving bedraagt € 150,- incl. BTW. De KMO-unit wordt verhuurd onder het BTW-stelsel; de vermelde huurprijs is excl. BTW.
In detail
-
Financieel
- Prijs
- € 950 per maand
- Opbrengsteigendom
- nee
-
Ligging
- Omgeving openbaar vervoer
- ja
- Omgeving winkels
- ja
-
Comfort
- Aansluiting riolering
- ja
- Aansluiting water
- ja
-
Gebouw
- Bewoonbare opp.
- 144,00 m²
- Bouwjaar
- 2022
- Verdieping(en)
- 1
- Type dak
- Platdak
- Oriëntatie voorgevel
- Zuid
-
Stedenbouwkundige informatie
- Bestemming
- G-score
- A
- P-score
- A
-
Energie
- Type ramen
- Aluminium
-
Technieken
- Elektriciteit
- ja
-
Indeling
- Terras
- nee
-
Downloads