Deze knappe villa bevindt zich op een rustige ligging aan de Houterstraat in Gellik. De vrijstaande woning is voorzien van PVC ramen met dubbele beglazing en wordt verwarmd door middel van stookolie met radiatoren. De woning is comfortabel ingericht en biedt een zee aan woonruimte. Enkele blikvangers in dit opzicht zijn de ruime woonkamer, de extra polyvalente ruimte met toegang naar tuin, de veranda en het bureel. In de kelder bevindt zich een overvloed aan bergruimte, net als in de twee zolderbergingen op de eerste verdieping.
Ook de zorgvuldige afwerking en het niveau aan comfort springen in het oog. Zo is de keuken uitgevoerd in hoogwaardige materialen en vind je in de woonkamer een gezellige ingebouwde haard. Er zijn ingebouwde kasten aanwezig in de inkomhal, het bureel en de hoofdslaapkamer. De royale badkamer is volledig uitgerust met hoekbad, douche, toilet, urinoir en meubel met dubbele wastafel.
De kers op de taart is de perceelgrootte van maar liefst 31a 81ca. Naast de woonst bevindt zich bovendien een bijgebouw met 2 paardenstallen. Hierdoor is deze woning uitermate geschikt voor paardenliefhebbers. Door haar gunstige ligging midden in het groen geniet je bovendien van een weids uitzicht op de achterliggende velden en bossen.
De Houterstraat bevindt zich in de woonkern van Gellik, een deelgemeente van Lanaken. Dagdagelijkse voorzieningen zoals de basisschool, winkels en horeca bevinden zich binnen handbereik. Het centrum van Lanaken bereik je op slechts enkele autominuten. Het centrum van Bilzen en van Maastricht én de toegang tot de E314 bereik je met de wagen op een kwartiertje. Doordat Gellik omgeven wordt door nationaal Park Hoge Kempen vind je hier de ideale plek om tot rust te komen.
INDELING:
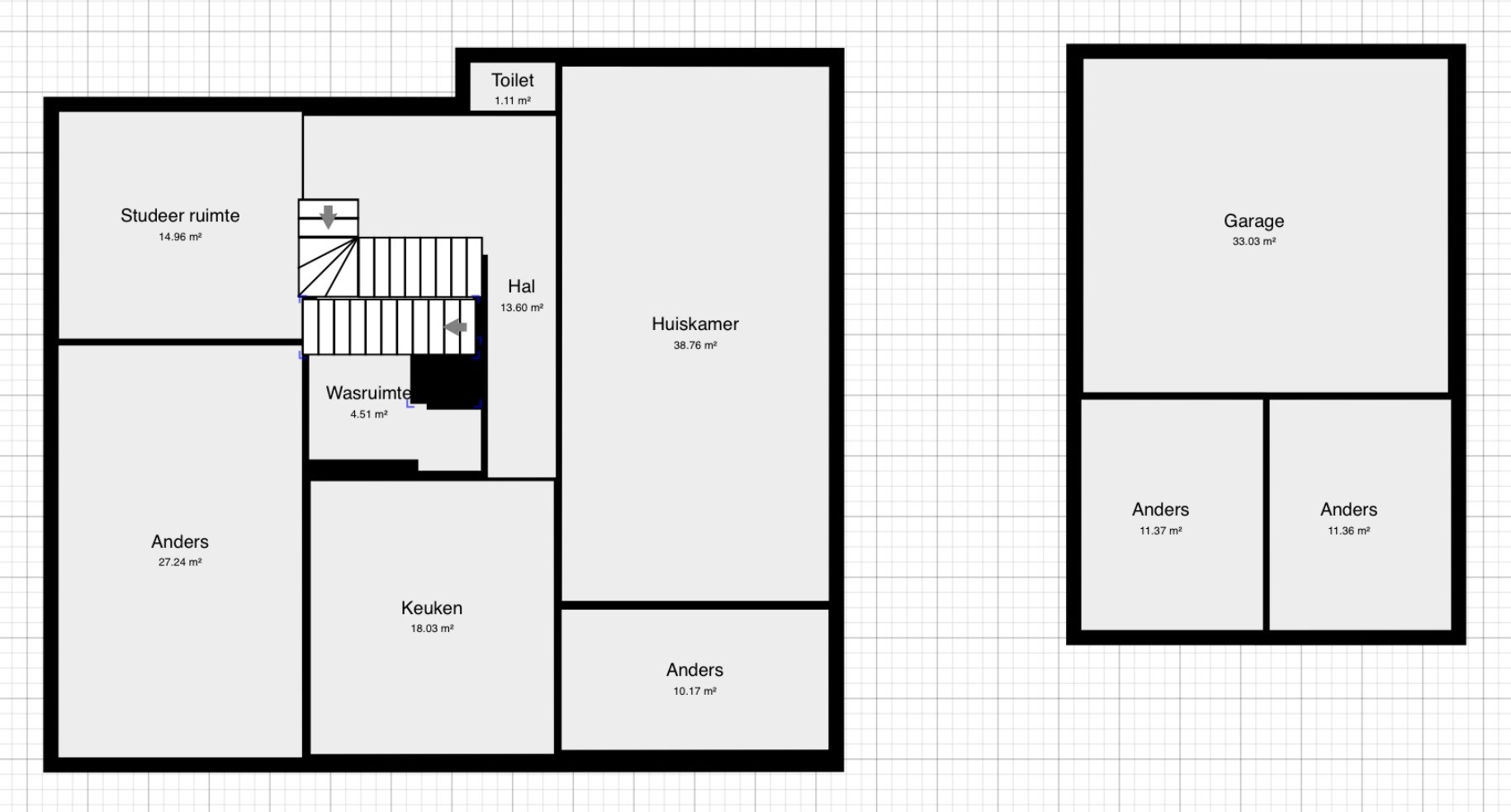
Kelder: voorraadruimte 1 (± 10,7 m²), voorraadruimte 2 (± 18,4 m²), cv-kelder (± 8,4 m²).
Gelijkvloers: inkomhal (± 13,6 m²), toilet (± 1,1 m²), bureel (± 14,9 m²), wasplaats (± 4,7 m²), polyvalente ruimte (± 27,2 m²), keuken (± 18 m²) met onder- en bovenkasten, oven, vaatwasser, spoelbak, microgolf, inductiekookplaat en koelkast, woonkamer (± 38,7 m²), veranda (± 10 m²).
1e verdieping: nachthal (± 15,6 m²), slaapkamer 1 (± 17,4 m²), slaapkamer 2 (± 17,8 m²) en zolderberging 1 (± 4 m²), badkamer (± 10,8 m²) met hoekbad, douche, dubbel meubel met spiegel, urinoir en toilet, slaapkamer 3 (± 15,6 m²) en zolderberging 2 (± 7,6 m²).
Bijgebouw: 2 paardenstallen, elk ± 11,4 m² en open stallingen (± 35 m²). Op de 1e verdieping bevindt zich een zolderruimte.
Ook de zorgvuldige afwerking en het niveau aan comfort springen in het oog. Zo is de keuken uitgevoerd in hoogwaardige materialen en vind je in de woonkamer een gezellige ingebouwde haard. Er zijn ingebouwde kasten aanwezig in de inkomhal, het bureel en de hoofdslaapkamer. De royale badkamer is volledig uitgerust met hoekbad, douche, toilet, urinoir en meubel met dubbele wastafel.
De kers op de taart is de perceelgrootte van maar liefst 31a 81ca. Naast de woonst bevindt zich bovendien een bijgebouw met 2 paardenstallen. Hierdoor is deze woning uitermate geschikt voor paardenliefhebbers. Door haar gunstige ligging midden in het groen geniet je bovendien van een weids uitzicht op de achterliggende velden en bossen.
De Houterstraat bevindt zich in de woonkern van Gellik, een deelgemeente van Lanaken. Dagdagelijkse voorzieningen zoals de basisschool, winkels en horeca bevinden zich binnen handbereik. Het centrum van Lanaken bereik je op slechts enkele autominuten. Het centrum van Bilzen en van Maastricht én de toegang tot de E314 bereik je met de wagen op een kwartiertje. Doordat Gellik omgeven wordt door nationaal Park Hoge Kempen vind je hier de ideale plek om tot rust te komen.
INDELING:
Kelder: voorraadruimte 1 (± 10,7 m²), voorraadruimte 2 (± 18,4 m²), cv-kelder (± 8,4 m²).
Gelijkvloers: inkomhal (± 13,6 m²), toilet (± 1,1 m²), bureel (± 14,9 m²), wasplaats (± 4,7 m²), polyvalente ruimte (± 27,2 m²), keuken (± 18 m²) met onder- en bovenkasten, oven, vaatwasser, spoelbak, microgolf, inductiekookplaat en koelkast, woonkamer (± 38,7 m²), veranda (± 10 m²).
1e verdieping: nachthal (± 15,6 m²), slaapkamer 1 (± 17,4 m²), slaapkamer 2 (± 17,8 m²) en zolderberging 1 (± 4 m²), badkamer (± 10,8 m²) met hoekbad, douche, dubbel meubel met spiegel, urinoir en toilet, slaapkamer 3 (± 15,6 m²) en zolderberging 2 (± 7,6 m²).
Bijgebouw: 2 paardenstallen, elk ± 11,4 m² en open stallingen (± 35 m²). Op de 1e verdieping bevindt zich een zolderruimte.
In detail
-
Financieel
- Prijs
- € 495.000
- Beschikbaarheid
- Vanaf akte
- Kadastraal inkomen
- € 1.241
- Opbrengsteigendom
- nee
-
Ligging
- Ligging
- Rustig
- Omgeving school
- 850,00 m
- Omgeving openbaar vervoer
- 500,00 m
- Omgeving winkels
- 400,00 m
-
Comfort
- Gemeubeld
- nee
- Aansluiting water
- ja
- Kabeltelevisie
- ja
-
Gebouw
- Bewoonbare opp.
- 205,00 m²
- Constructie
- Open
- Bouwjaar
- 1984
- Verdieping(en)
- 3
- Gevelbreedte
- 13,40 m
- Oriëntatie achtergevel
- West
- Oriëntatie voorgevel
- Oost
-
Terrein
- Perceel opp.
- 3.181,00 m²
- Breedte aan de straatkant
- 30,60 m
- Tuin
- ja
-
Stedenbouwkundige informatie
- Bouwvergunning
- ja
- Verkavelingsvergunning
- nee
- Voorkooprecht
- nee
- Dagvaarding
- Geen rechterlijke herstelmaatregel of bestuurlijke maatregel opgelegd
- Vonnissen
- nee
- G-score
- A
- P-score
- B
- Asbestinventarisattest
- Ja, 07 juni 2025
-
Ruimtelijke ordening
- Kadaster sectie
- A
- Kadaster nummer
- 181/F
- Kadaster opp.
- 3.181,00 m²
-
Energie
- EPC
- 366 kWh/m²
- EPC unieke code
- 20250614-0003625051-RES-1
- EPC klasse
- D
- Type ramen
- PVC
- Dubbel glas
- ja
- Elektriciteitskeuring
- ja, niet conform, 23 juni 2025
- Verwarming
- Stookolie
- Olietank
- 2000 l
-
Technieken
- Elektriciteit
- ja
- Telefoonbekabeling
- ja
-
Garages / parking
- Garages / parking
- ja
-
Indeling
- Kelder
- ja
- Slaapkamers
- 3
- Slaapkamer 1
- 18 m²
- Slaapkamer 2
- 18 m²
- Slaapkamer 3
- 16 m²
- Badkamers
- 1
- Badkamer
- 11 m², type: Alle comfort
- Toiletten
- 2
- Douchekamers
- 1
- Terras
- ja
- Bureau
- 15 m²
- Woonkamer
- 39 m²
- Keuken
- 18 m², Volledig geïnstalleerd
- Veranda
- ja
Wenst u uw hypotheek te berekenen?
